新潟県阿賀野市次郎丸 真光寺ヴィレッジL棟の一戸建て中古住宅
(売主)| 総額 | 450万円 | 取引態様 | 売主 | |
|---|---|---|---|---|
| 住居表示 | 新潟県阿賀野市次郎丸1291番地267 | |||
- おすすめポイント
★静けさと開放感を楽しむ、日当り良好な高床式別荘
★住宅ローン減税適用
★3K
★南側約6.0m×東側約4.0道路角地
★R8.4リフォーム済み
※管理棟にて待ち合わせ後、物件へご案内いたします。
この物件について
主な特長
S60年月日不詳新築
S63年増築
住宅ローン減税適用
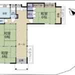
間取り
3K
接面道路
南側約6.0m×東側約4.0道路角地
駐車なし
固定資産税額
13,400円/令和7年度
R8.4リフォーム済み
内部補修
ハウスクリーニング
等
JR羽越本線 「水原駅」約9.7km(車:約16分)
阿賀野市立笹岡小学校 約4.9km
阿賀野市立笹神中学校 約5.5km
ウオロク水原店 約10km(車:約15分)
ローソン阿賀野畑江店 約950m
阿賀野市役所笹神支所 約5.1km(車:約9分)
あがの市民病院 約9.4km(車:約16分)
サントピアワールド 約10.5km(車:約15分)
高速安田IC 約11.1km(車:約16分)
物件の特徴
- 角地
- システムキッチン
- 温水洗浄便座
- プロパンガス
- 公営水道
- 排水浄化槽
- 即入居可
パノラマビュー
物件概要
| 取引態様 | 売主 | 物件名称 | 新潟県阿賀野市次郎丸 真光寺ヴィレッジL棟 | ||||||||||||
|---|---|---|---|---|---|---|---|---|---|---|---|---|---|---|---|
| 総額 | 450万円 | 住居表示 | 新潟県阿賀野市次郎丸1291番地267 | ||||||||||||
| 構造 | 木造かわら・亜鉛メッキ鋼板ぶき高床式平家1階建 | 新築年月日 | 昭和60年月日不詳新築 昭和63年増築 | ||||||||||||
| 土地面積 | 227㎡ (68.67坪) | 建物面積 | 67.36㎡(20.38坪) | ||||||||||||
| 間取り | 3K | リフォーム | R8.4リフォーム済み | ||||||||||||
| 土地 |
| 駐車場 | 駐車場なし | ||||||||||||
| 設備 |
| 交通 |
| ||||||||||||
| 特記事項 | ・空き家 水道供給施設使用料1,200円/月 下水処理費1,000円/月※基本仕様料共益費48,830円/年 ゴミ分別料200円/月 共同アンテナ新規加入料100,000円 維持費6,000円/年※別途屋内工事 ※温泉使用を契約する場合は温泉契約料1,000,000円(10年分) 以降10年間で200,000円※任意 温泉料2,300円/月※別途配管切替工事費用 ※全て税別 | 都市計画法 |
| ||||||||||||
| 学校区 |
| 仲介手数料 | 売主により仲介手数料はかかりません | ||||||||||||
| 備考 |
| ||||||||||||||
地図
Loading...
※[注]地図上に表示される物件の位置は、付近住所に所在することを表すものであり、実際の物件所在地とは異なる場合がございます。
周辺施設
- JR羽越本線 「水原駅」約9.5km
- 阿賀野市立笹岡小学校 約4.8km
- 阿賀野市立笹神中学校 約5.4km
- ウオロク水原店 約9.8km(車:約15分)
- ローソン阿賀野畑江店 約800m
- 阿賀野市役所笹神支所 約4.9km(車:約9分)
- サントピアワールド 約10.4km(車:約15分)
- 高速安田IC 約10.9km(車:約16分)
物件お問い合わせフォーム
幸せホームの物件にご関心をお寄せいただきありがとうございます。こちらのフォームにご連絡先等入力をお願いいたします。弊社で確認後速やかに回答を差し上げます。
※お問い合わせは日本語対応となります。



























































































































