新潟の中古住宅・不動産情報満載!売買・仲介・不動産

新潟県村上市有明の一戸建て中古住宅

(売主)
総額1450万円取引態様売主
住居表示新潟県村上市有明623番地
簡単1分!見学予約! この物件に問い合わせる 無料
  
おすすめポイント

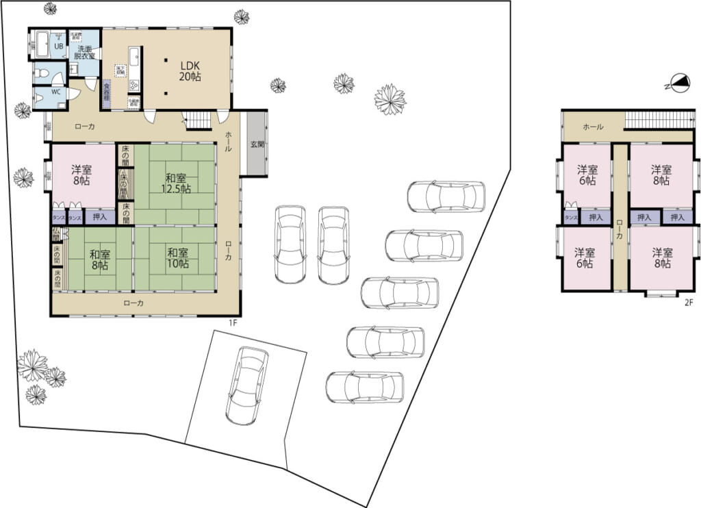
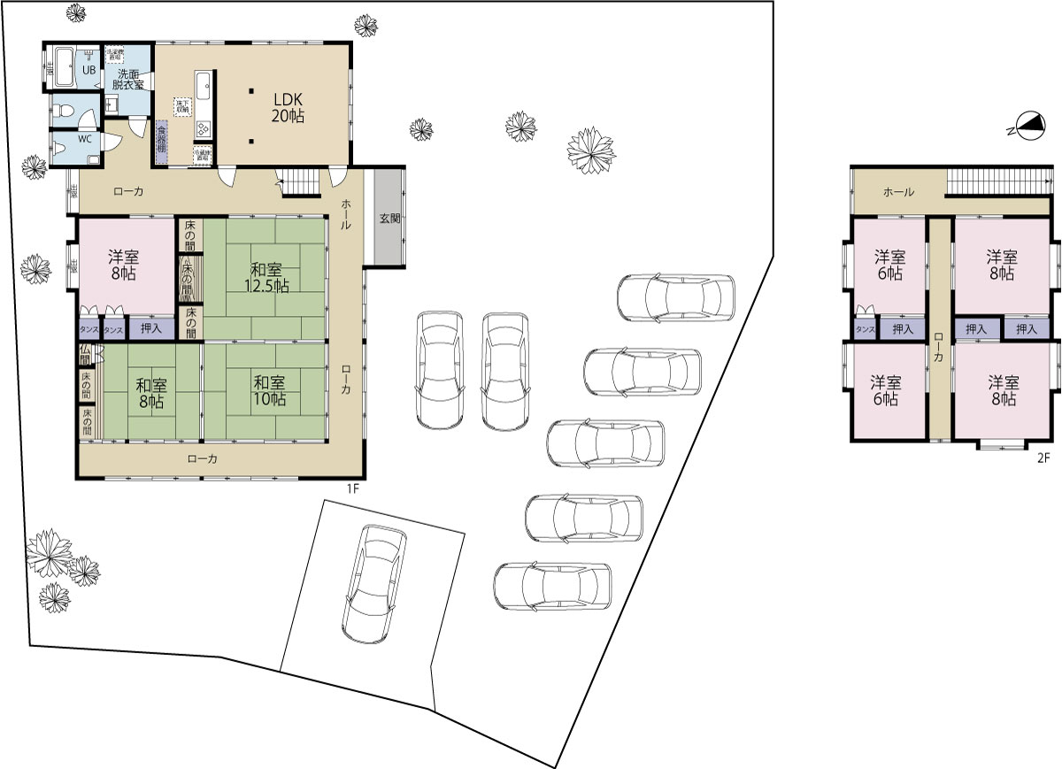
★入母屋造りの本格和風邸宅!約197坪の敷地で自然とともに暮らす贅沢
★8LDK(LDK20帖)
★北西側4.7m道路
★駐車8台可
★敷地面積:約197坪
★R7.9リフォーム済み

この物件について

主な特長
S52年9月新築
敷地面積:約197坪

間取り
8LDK(LDK20帖)

接面道路
北西側4.7m道路
駐車8台可

固定資産税額
69,200円/令和7年度

R7.9リフォーム済み
水廻り新品
(キッチン・バス・トイレ・洗面化粧台)
外部・内部塗装
クロス張替
畳新品

周辺施設
JR羽越本線「岩船町駅」約2.4km(車:約5分)
村上市立神納小学校 約2.4km
村上市立神林中学校 約350m(徒歩:約5分)
原信 村上インター店 約4.4km(車:約7分)
セブンイレブン村上神林インター店 約2.7km
村上市役所神林支所 約2.5km(車:約5分)
国道7号線 約1.7km(車:約3分)
道の駅 神林 約2.7km(車:約5分)
岩船港鮮魚センター 約7.5km(車:約12分)
高速 神林岩船港IC 約3.5km(車:約8分)

物件の特徴

  • リノベーション
  • IHコンロ
  • 対面キッチン
  • ユニットバス
  • 洗面化粧台
  • 温水洗浄便座
  • 公営水道
  • 公共下水
  • 駐車3台以上可
  • 庭付
  • LDK15帖以上
  • 中学校が近い
  • 即入居可

物件概要

取引態様売主物件名称新潟県村上市有明
総額1450万円住居表示新潟県村上市有明623番地
構造木造セメント瓦葺2階建新築年月日昭和52年9月20日
土地面積652.44㎡ (197.36坪)建物面積247.01㎡(74.72坪)
間取り8LDKリフォームR7.9リフォーム済み
土地
地目宅地
接面道路 北西4.7m公道
備考
駐車場駐車8台可
設備
水道公営水道
ガス
雑排水公共下水
汚水公共下水
交通
JR羽越本線 岩船町駅 約2.4km
その他周辺環境最寄バス停:バス停「有明」
特記事項・空き家・石油給湯器・IHコンロ都市計画法
非線引き区域
用途地域無指定
建ぺい率70%
容積率200%
学校区
小学校神納小学校
中学校神林中学校
仲介手数料売主により仲介手数料はかかりません
備考
  • リノベーション
  • IHコンロ
  • 対面キッチン
  • ユニットバス
  • 洗面化粧台
  • 温水洗浄便座
  • 公営水道
  • 公共下水
  • 駐車3台以上可
  • 庭付
  • LDK15帖以上
  • 中学校が近い
  • 即入居可
簡単1分!見学予約! この物件に問い合わせる 無料

地図

Loading...
※[注]地図上に表示される物件の位置は、付近住所に所在することを表すものであり、実際の物件所在地とは異なる場合がございます。

物件お問い合わせフォーム

幸せホームの物件にご関心をお寄せいただきありがとうございます。こちらのフォームにご連絡先等入力をお願いいたします。弊社で確認後速やかに回答を差し上げます。

※お問い合わせは日本語対応となります。


    • お名前 (必須)

    • 都道府県

    • お問い合わせ物件名

      新潟県村上市有明

    • メールアドレス (必須)

    • お電話番号 (必須)

    • お問い合わせ内容


    フリー検索
    物件検索
    地域から探す(複数選択可)
    価格帯を選択
    間取りを選択(複数選択可)
    土地面積を選択
    建物面積を選択
    有限会社幸せホーム
    • 〒950-0905
      新潟市中央区天神尾1丁目12番9号
    • TEL:025-255-5680
    • FAX:025-255-5676
    • (営業時間 8:00~20:00 年中無休)
    お電話でのお問い合わせ webでのお問い合わせ
    ; ;