新潟県新潟市南区東笠巻新田B棟の一戸建て中古住宅
(売主)| 総額 | 1600万円 | 取引態様 | 売主 | |
|---|---|---|---|---|
| 住居表示 | 新潟県新潟市南区東笠巻新田1035番地 | |||
- おすすめポイント
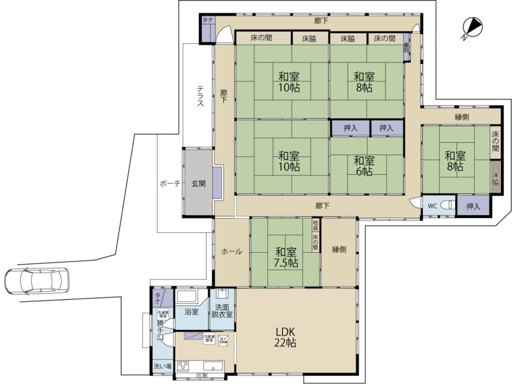
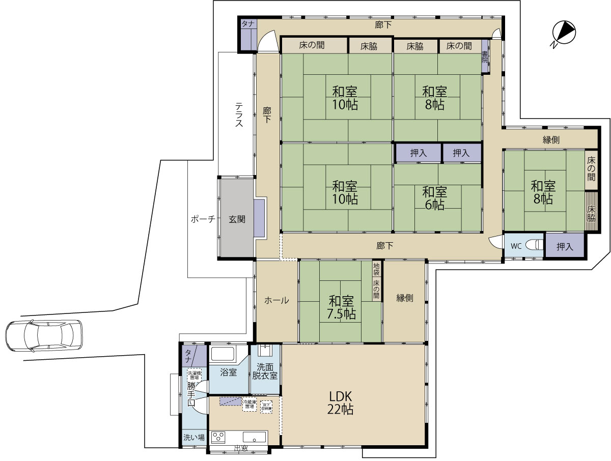
★旧家移築の美と風格!梁あらわしLDKの平家建てリノベ古民家
★敷地面積:約394坪 別途畑:約343坪
★6LDK(LDK22帖)
★東側約6.0m×西側約7.0m両面道路
★駐車6台可
★R8.1リフォーム済み
この物件について
主な特長
S25年新築 S59年増築
敷地面積:約394坪
別途畑:約343坪
平家建て古民家
間取り
6LDK(LDK22帖)
接面道路
東側約6.0m×西側約7.0m両面道路
駐車6台可
R8.1リフォーム済み
水廻り一部新品
(キッチン・トイレ・洗面化粧台)
外壁張替
外部・内部塗装
クロス・フロア張替
等
周辺施設
JR信越本線「さつき野駅」約7.8km(車:約15分)
新潟市立大鷲小学校 約1.3km
新潟市立白根北中学校 約1.9km
ウオロク白根大通店 約3.2km(車:約6分)
ローソン東笠巻店 約1.1km
アグリパーク 約1.8km(車:約4分)
国道8号線 約2.9km(車:約5分)
白根大通病院 約3.7km(車:約7分)
物件の特徴
- リノベーション
- システムキッチン
- 洗面化粧台
- 温水洗浄便座
- 都市ガス
- 公営水道
- 排水浄化槽
- 駐車3台以上可
- 庭付
- LDK15帖以上
- 即入居可
物件概要
| 取引態様 | 売主 | 物件名称 | 新潟県新潟市南区東笠巻新田B棟 | ||||||||||||
|---|---|---|---|---|---|---|---|---|---|---|---|---|---|---|---|
| 総額 | 1600万円 | 住居表示 | 新潟県新潟市南区東笠巻新田1035番地 | ||||||||||||
| 構造 | 木造瓦葺平家1階建 | 新築年月日 | 昭和25年月日不詳新築 昭和59年増築 | ||||||||||||
| 土地面積 | 1,306.26㎡ (395.14坪) | 建物面積 | 221.96㎡(67.14坪) | ||||||||||||
| 間取り | 6LDK | リフォーム | R8.1リフォーム済み | ||||||||||||
| 土地 |
| 駐車場 | 駐車6台可 | ||||||||||||
| 設備 |
| 交通 |
| ||||||||||||
| 特記事項 | ・空き家 | 都市計画法 |
| ||||||||||||
| 学校区 |
| 仲介手数料 | 売主により仲介手数料はかかりません | ||||||||||||
| 備考 |
| ||||||||||||||
地図
Loading...
※[注]地図上に表示される物件の位置は、付近住所に所在することを表すものであり、実際の物件所在地とは異なる場合がございます。
物件お問い合わせフォーム
幸せホームの物件にご関心をお寄せいただきありがとうございます。こちらのフォームにご連絡先等入力をお願いいたします。弊社で確認後速やかに回答を差し上げます。
※お問い合わせは日本語対応となります。






























































































































































































