新潟の中古住宅・不動産情報満載!売買・仲介・不動産

新潟県新潟市西区五十嵐西の一戸建て中古住宅

(売主)
総額1580万円取引態様売主
住居表示新潟県新潟市西区五十嵐西23番4号
簡単1分!見学予約! この物件に問い合わせる 無料
  
おすすめポイント

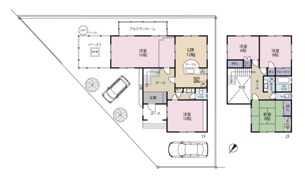
★吹抜け玄関が出迎える、個性が光る5LDK洋風住宅
★住宅ローン減税適用
★5LDK(LDK13帖)
★北東側約6.0m×北西側約4.0m道路
★駐車3台可
★R7.10リフォーム済み

この物件について

主な特長
S58年7月新築
住宅ローン減税適用

間取り
5LDK(LDK13帖)

接面道路
北東側約6.0m×北西側約4.0m道路角地
駐車3台可

固定資産税額
57,100円/令和7年度

R7.10リフォーム済み
水廻り一部新品
(キッチン・バス)
外壁部分張替
外部・内部塗装
クロス・フロア張替
畳表替

周辺環境
JR越後線「内野西が丘駅」約2km(車:約7分)
新潟市立西内野小学校 約700m(徒歩:約9分)
新潟市立内野中学校 約1.7km
原信 内野店 約800m(徒歩:約10分)
セブンイレブン新潟五十嵐中島5丁目店 約750m
国道402号線 約1.7km(車:約4分)
新潟大学五十嵐キャンパス 約4.1km(車:約11分)
信楽園病院 約5.4km(車:約14分)
佐潟公園 約5.5km(車:約10分)

物件の特徴

  • 角地
  • 対面キッチン
  • ユニットバス
  • 洗面化粧台
  • 温水洗浄便座
  • 都市ガス
  • 公営水道
  • 公共下水
  • 駐車3台以上可
  • 庭付
  • LDK11帖以上
  • 小学校が近い
  • スーパーが近い
  • 即入居可

物件概要

取引態様売主物件名称新潟県新潟市西区五十嵐西
総額1580万円住居表示新潟県新潟市西区五十嵐西23番4号
構造木造瓦葺2階建新築年月日昭和58年7月28日
土地面積240.25㎡ (72.68坪)建物面積146.99㎡(44.46坪)
間取り5LDKリフォームR7.10リフォーム済み
土地
地目宅地
接面道路 北東約6.0m公道 北西約4.0m公道
備考
駐車場駐車3台可
設備
水道公営水道
ガス都市ガス
雑排水公共下水
汚水公共下水
交通
JR越後線 内野西が丘駅 約2km
特記事項・空き家都市計画法
市街化区域
用途地域第一種低層住居専
建ぺい率50%
容積率100%
学校区
小学校西内野小学校
中学校内野中学校
仲介手数料売主により仲介手数料はかかりません
備考
  • 角地
  • 対面キッチン
  • ユニットバス
  • 洗面化粧台
  • 温水洗浄便座
  • 都市ガス
  • 公営水道
  • 公共下水
  • 駐車3台以上可
  • 庭付
  • LDK11帖以上
  • 小学校が近い
  • スーパーが近い
  • 即入居可
簡単1分!見学予約! この物件に問い合わせる 無料

地図

Loading...
※[注]地図上に表示される物件の位置は、付近住所に所在することを表すものであり、実際の物件所在地とは異なる場合がございます。

物件お問い合わせフォーム

幸せホームの物件にご関心をお寄せいただきありがとうございます。こちらのフォームにご連絡先等入力をお願いいたします。弊社で確認後速やかに回答を差し上げます。

※お問い合わせは日本語対応となります。


    • お名前 (必須)

    • 都道府県

    • お問い合わせ物件名

      新潟県新潟市西区五十嵐西

    • メールアドレス (必須)

    • お電話番号 (必須)

    • お問い合わせ内容


    フリー検索
    物件検索
    地域から探す(複数選択可)
    価格帯を選択
    間取りを選択(複数選択可)
    土地面積を選択
    建物面積を選択
    有限会社幸せホーム
    • 〒950-0905
      新潟市中央区天神尾1丁目12番9号
    • TEL:025-255-5680
    • FAX:025-255-5676
    • (営業時間 8:00~20:00 年中無休)
    お電話でのお問い合わせ webでのお問い合わせ
    ; ;